项目信息
Project information
- 项目类别
Category:精装房 - 合作单位
Client: 盤石设计 - 项目日期
Project date: 2020
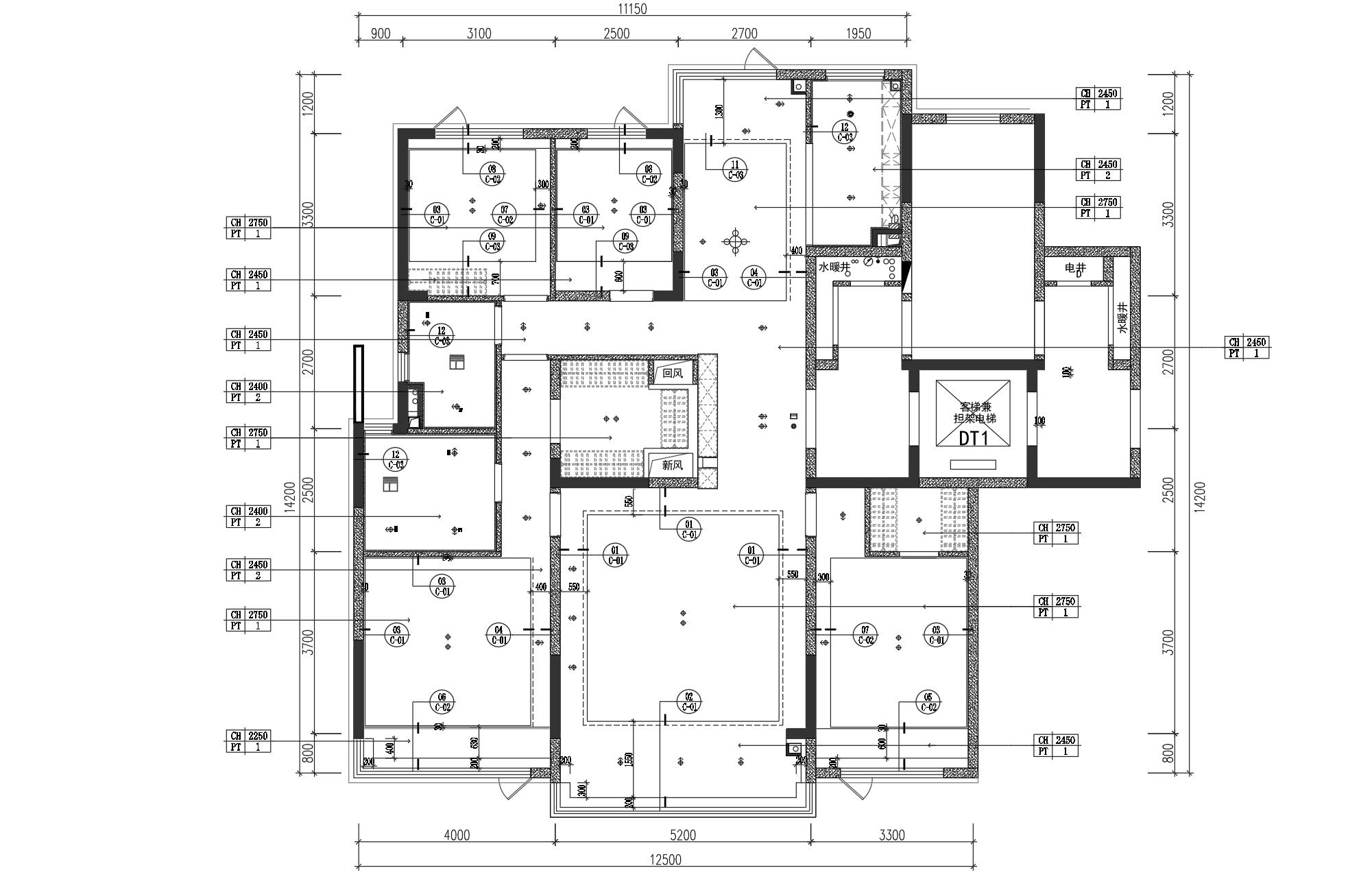
金茂府样板间
Jinmaofu model room
借助金茂品牌优势打造与世界接轨的设计理念;引领当地生活方式;为营销创造话题性;为大众留下传唱性。
With the help of Jinmao's brand advantages, we can create a design concept that is in line with the world; Leading the local way of life;Create topic for marketing;To leave the singing for the public.
